Brak produktów w tej kategorii.
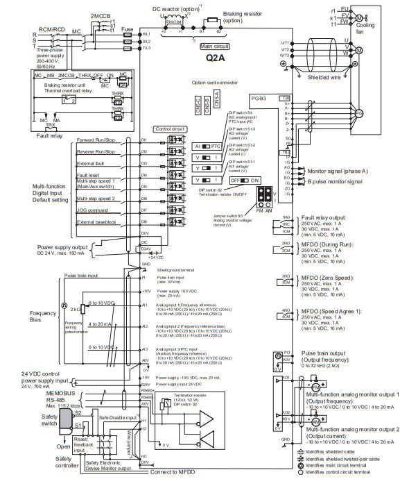
Falowniki Q2A charakteryzują się możliwością obsługi różnych typów silników w pętlach otwartych i zamkniętych. Falowniki Omron z tej grupy posiadają wbudowane funkcje bezpieczeństwa funkcjonalnego (STO SIL3). Dodatkowo wyposażone są w wbudowany filtr EMC klasy C3, tranzystor hamowania (do 90 kW), zegar czasu rzeczywistego, wejście zasilania 24 V DC dla karty sterowania. Możliwa jest komunikacja przez protokoły: EtherCAT, EtherNet/IP, PROFINET, Modbus TCP/IP, POWERLINK. Parametry można ustawić za pomocą narzędzia Q2edit. Falowniki Q2A mogą sterować silnikami IM, SPM, IPM, DDPM i SynRM, dzięki czemu można je łatwo dostosować do indywidualnych potrzeb klienta. Standardowa częstotliwość to do 590 Hz.
Wektorowe przemienniki częstotliwości Q2A dostępne są w wykonaniu trójfazowym o zakresie mocy od 550W do 315 kW. Omron w tej serii oferuje przetworniki o zasilaniu 3 x 200 V AC oraz 3 x 400 V AC. Falowniki te dzięki szeroki możliwością komunikacyjnym należą do grupy inwerterów o zastosowaniu ogólnym. Omron zapewnił w przetwornikach Q2A komunikację; Modbus, EtherCAT, EtherNet/IP, Profinet oraz Powerlink. Dodatkowo jako opcja jest możliwa łączność z urządzeniami mobilnymi za pomocą portu USB lub Bluetooth. W standardzie urządzenia Q2A Omron zostały wyposażone funkcję bezpieczeństwa w postaci STO SIL3. W standardzie przemienniki dysponują 8 wejściami cyfrowymi, 3 wejściami analogowymi, 2 wyjściami analogowymi oraz wyjściem przekaźnikowym. Omron daje możliwość rozbudowy o dodatkowe punkty I/O przy pomocy dedykowanych kart rozszerzeń. Dodatkowo producent wyposażył przetworniki w zabudowany filtr EMC klasy C3, zegar czasu rzeczywistego RTC. Ponadto falowniki Q2A Omron o mocy do 90 KW posiadają wbudowany tranzystor hamowania. Kolejnym atutem jest opcja przechowywania danych na karcie micro SD. Kolejną zaletą tych falowników jest współpraca z różnymi typami silników w pętli otwartej oraz pętli zamkniętej. Q2A zostały wyposażone w funkcję kontroli prędkości zerowej bez enkodera. Przeciążalność inwerterów w pracy normalnej wynosi 110% przez 60 sekund, natomiast przy pracy ciężkiej jest to 150% przez 1 minutę. Wektorowe falowniki Q2A można połączyć z urządzeniami do odzyskiwania energii. Odzyskana w ten sposób energia, wykorzystywana jest przez pozostałe urządzenia podłączone do sieci. Omron deklaruje możliwość pracy 3-fazowych falowników Q2A w przedziale temperatury od -10 do +50 stopni Celsjusza.




Przemienniki częstotliwości Q2A marki Omron konfigurowane są przy pomocy oprogramowania Q2edit oraz Q2dev. Oprogramowanie Q2edit umożliwia konfigurację parametrów. Program ten umożliwia monitorowania zarówno dla komputerów, jak i urządzeń mobilnych. Niewątpliwą zaletą trójfazowych napędów Q2A jest możliwość programowania bez podłączenia źródła zasilania. Omron wypuścił również aplikacje A2app przeznaczoną do urządzeń z systemem Android. Przy pomocy tej aplikacji operat ma możliwość monitorowania stanu falownika, a nawet zmiany parametrów.


Przemienniki częstotliwości Q2A marki Omron konfigurowane są przy pomocy oprogramowania Q2edit oraz Q2dev. Oprogramowanie Q2edit umożliwia konfigurację parametrów. Program ten umożliwia monitorowania zarówno dla komputerów, jak i urządzeń mobilnych. Niewątpliwą zaletą trójfazowych napędów Q2A jest możliwość programowania bez podłączenia źródła zasilania. Omron wypuścił również aplikacje A2app przeznaczoną do urządzeń z systemem Android. Przy pomocy tej aplikacji operat ma możliwość monitorowania stanu falownika, a nawet zmiany parametrów.